OLI_labarre
grange aménagée
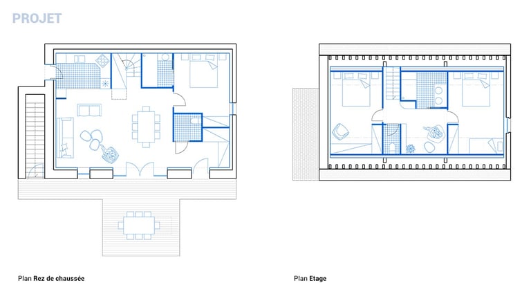
Projet : Réhabilitation d'une grange
Surface habitable : 94 m²
Mission : coconception avec Chloé Kowalczyk architecte HMONP, autorisation d’urbanisme (PC)
Statut : PC obtenu
Localisation : Olivet (45)
Située sur un terrain enclavé dans le Sud d'Olivet, cette grange bénéficiera d'une réhabilitation complète pour devenir un hébergement de tourisme composé de 3 chambres dont une accessible aux personnes à mobilité réduite.
La large porte cochère accueille une baie vitrée qui illumine la pièce de vie ouverte sur le salon et la cuisine sur le mur opposé. Des fenêtres de toit éclairent les chambres créées dans les combles.








