BEL_Charniaz
Mécanique familiale
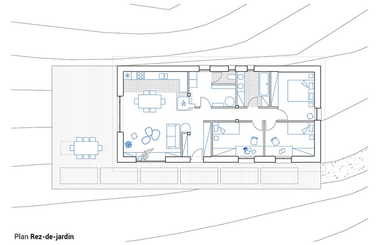
Projet : Autoconstruction de maison d’habitation
Surface habitable : 88 m²
Mission : conception, autorisation d’urbanisme (DP), optimisation structurelle
Statut : En cours
Localisation : Bellecombes en Bauges (73)
Situé dans le village de Bellecombe-en-Bauges en Savoie sur une parcelle en forte pente orientée Sud Est, ce projet d’une maison extensible d’environ 80m² au sol pour une famille de 4 personnes a nécessité l’aide d’un charpentier dont les méthodes de construction adaptées aux autoconstructeurs ont été soigneusement appliquées ici. L’idée principale est d’utiliser le moins de sections de bois possibles pour faciliter la commande et la mise en oeuvre. La deuxième est de concevoir le découpage des murs pour qu’ils soient manipulables par une ou deux personnes.
Le calepinage des montants est ensuite basé sur les isolants choisis, ici de la laine de bois et des bottes de paille, pour un minimum de chutes et de coupes.
La maison est pensée de manière évolutive, avec des combles aménageables ultérieurement dont les ouvertures seront dans un premier temps recouvertes par du bardage.
De même, les fondations sont prévues dans la continuité du volume principal pour supporter l’extension prévue dans le prolongement.










