CHE_Morand
pragmatisme artistique
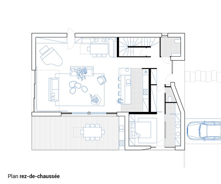
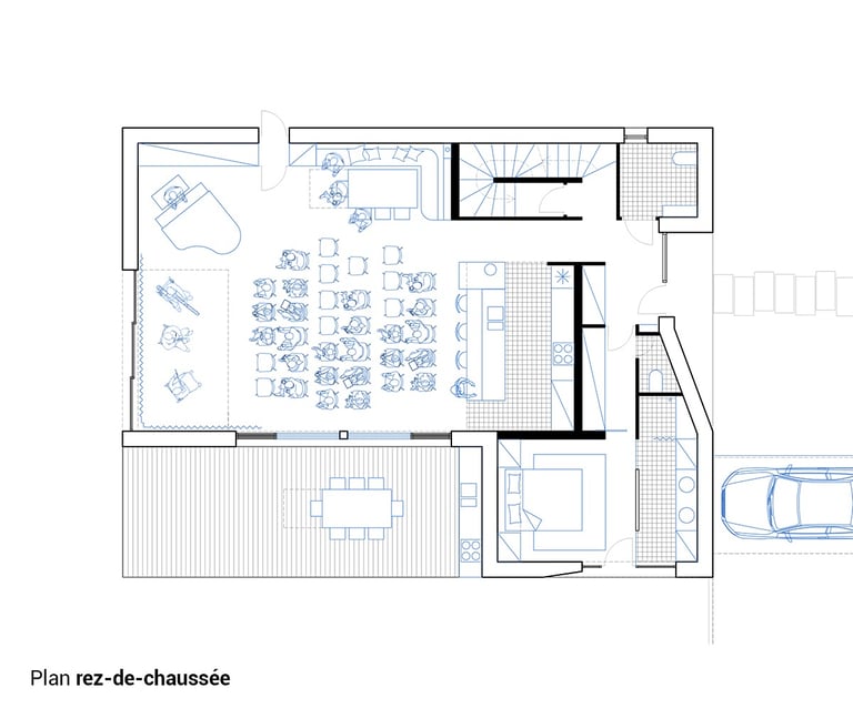
Projet : Construction d’une maison d’habitation
Surface habitable : m²
Mission : coconception avec Chloé Kowalczyk architecte HMONP, autorisation d’urbanisme (PC), consultation des entreprises (DCE)
Statut : Abandonné
Localisation : Chécy (45)
Cette grande maison a été conçue pour être modulable. Au rez-de-chaussée, l'espace salon salle à manger de 60m² est relié à une cuisine professionnelle pour permettre d'accueillir de petits événements artistiques comme un concert ou un spectacle en petit comité. L'étage comporte trois chambres, deux salles de bains, et une double hauteur sur le salon peut être utilisée comme grill technique au-dessus de la scène.
Avec sa forme simple, la structure de la maison fait appel à des techniques industrielles de poutres précontraintes, prédalles et prémurs pour favoriser la mise en œuvre, se passer de finition intérieure et supporter une isolation thermique par l'extérieur efficace. La charpente s'articule sur des chevrons porteurs entre lesquels une isolation en ouate de cellulose permet d'isoler la maison et créer de l'inertie thermique pour le confort d'été.










